facebook pixel
Save

Rent · Office

Ljubljana City, Šiška

Business Premises | 89.43 m2

1.330 €/month (14,9 €/m2)
176views0saved

Rok Lujanac

univ. dipl. prav., nepremičninski posrednik

Name and surname
E-mail
Phone number
Message
This property can be viewed live remotely. More about VIO
  • Transaction: Rent
  • Property Type: Business Premises
  • Property Subtype: Office
  • 89.43 m2
  • Built: 2005
  • Energy Certificate: C
  • Floor: 2
  • No. of parking spaces 3
  • Region: Ljubljana City
  • Municipality: Šiška
  • Code: OP11645RL

General

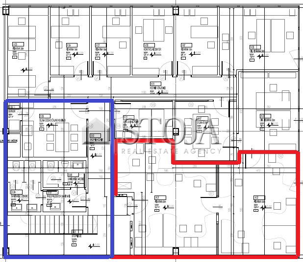
For rent a bright, representative and fully equipped business premises in an easily accessible location only 500 meters from the ring road (net 60.62 m2).

The premises are located in a newer and well-maintained building with 3 parking spaces and operating costs included in the advertised price.

The layout includes two interconnected offices with access to a covered and panoramic terrace (ca. 15 m2x0.75 m2 = 11.25 m2). The offices also share the common areas, namely the hallway, separate toilets and kitchenette (the share of common areas that fall into these offices is 17.56 m2).

The premises are air-conditioned and equipped with an alarm, video surveillance and all the necessary connections. Possibility of additional rental of two separate offices (2x9 m2) on the same floor.

22% VAT is additional to the rent, available immediately, you are welcome to visit!

Link to the video presentation of the premise: https://youtu.be/cKawoA1o3so

The lessor's condition for the conclusion of the lease: the lessee pays a part of additional services of drafting the rental contract, which includes the following actions by the broker: handover of the real estate, participation in the transfer of subscriptions, the preparation and storage of pictorial material in line with the price list in the agency’s general terms - under the advertised rent and predicted duration of lease for 25 months, the lessee pays a one-off amount of 1.162,59 EUR plus 22 % VAT, which amounts to 1.418,36 EUR.

Features

  • Additional
    Covered ParkingParkingElevator

Luxury

  • Air Conditioning

Rooms

  • Kitchen - Separate: 2