facebook pixel
Save

Rent · Row House

Ljubljana City, Bežigrad

Bedrooms: 3 | Bathrooms: 2 | House | 169 m2

3.000 €/month
60views0saved

Esad Čeman

Nepremičninski posrednik

Name and surname
E-mail
Phone number
Message
This property can be viewed live remotely. More about VIO
  • Transaction: Rent
  • Property Type: House
  • Property Subtype: Row House
  • 169 m2
  • Built: 2012
  • Energy Certificate: B2
  • Floor: P+1+2
  • Parcel: 294 m2
  • No. of bedrooms 3
  • No. of bathrooms 2
  • No. of parking spaces 3
  • Region: Ljubljana City
  • Municipality: Bežigrad
  • Equipment: Furnished
  • Code: OH13376EČ

General

We are renting a beautifully decorated house, partially furnished, in the immediate vicinity of the forest and all infrastructure, for a long term.

We are renting a beautifully decorated house (partially or fully) furnished for a long term.

The house is available from December 2025 onwards.

It is located right next to the forest and only 5 minutes away from the British International School, and the local primary school and kindergarten are only 3 minutes walk from the house. The house has a very nice location with a beautiful view from all three terraces.

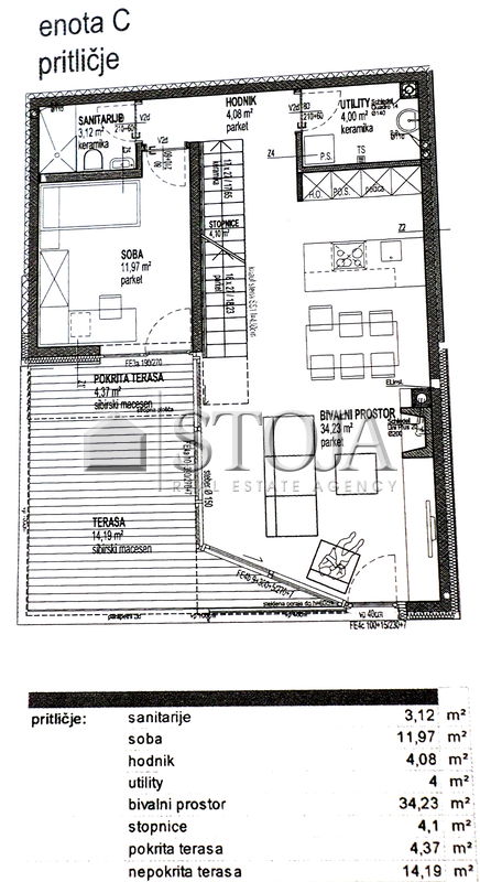
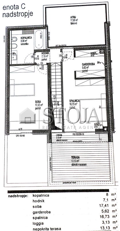
The layout of the house is visible from the attached floor plan, and the quality of workmanship and equipment can be seen from the photos. The house has 3 bedrooms, 2 bathrooms, a dressing room, utility room and garage.

The landlord's condition for concluding the deal:
- Minimum rental period 36 months,
- The amount of the security deposit is: 5,000 EUR,
- The tenant assumes part of the additional services, i.e. drawing up a lease agreement, which includes the following actions of the broker: carrying out the handover of the property and drawing up the minutes, participating in the transcription of subscriptions, preparing and storing image material, in accordance with the price list stated in the general terms and conditions of the real estate company, so that the tenant pays a one-time amount for additional services of EUR 3,000 plus 22% VAT for the advertised rent and duration of the lease, for a total of EUR 3,660. VAT is charged only on additional services, not on the rent!

Features

  • Additional
    BalconyParkingTerraceGardenGarageAsphalt RoadMaintained
  • Connectors
    Optical FiberSewerageWaterElectricityGas Pipeline
  • Heating
    GasFireplaceUnderfloor HeatingAir Conditioner
  • Orientation
    EastSouthWest

Rooms

  • Bedroom: 3
  • Bathroom: 2
  • Balcony: 1
  • Garage: 1
  • Storage: 1
  • Terrace: 1