
Nepremičninski posrednik
Don`t miss out on the best real estate offers. Sign up for Moja Stoja.
Read more
Parking spaces:
possibility to rent parking spaces at a favorable price of €35/space/month + VAT. Parking up to 30 minutes is free. Rental of a larger number of parking spaces is possible.
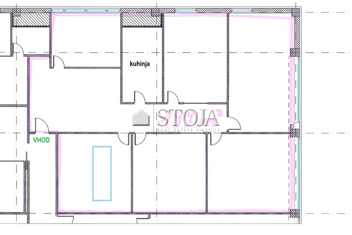
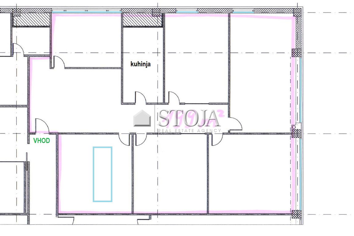
The premises are available for occupancy in December.
The seller's condition for the sale: The purchaser pays The Real Estate Transfer Tax, which amounts to 2 % of the sales price.
___________
Lessor's condition for concluding a deal:
- Minimum rental period ............... months,
- The security deposit amounts to: EUR ..............,
- The lessee accepts part of the additional services in payment, i.e. drawing up the rental agreement, which includes the following actions of the intermediary: execution of the handover of the real estate and drawing up of minutes, participation in the transcription of subscriptions, preparation and storage of image material, in accordance with the price list specified in the general terms and conditions of the real estate company, so that the tenant pays the advertised rent and duration of the lease one-off amount for additional services EUR ............... plus 22% VAT, total EUR ..................
VAT is charged only on additional services, not on rent!