
Direktor
Ne zamudite najboljših ponudb nepremičnin. Prijavite se v Moja Stoja.
Preberite večNICA, NOVA GORICA – večnamenski poslovni apartma v 1. nadstropju z ložo
*POMEMBNO: NA ŽELJO KUPCA LAHKO INVESTITOR VLOŽI PREDLOG ZA SPREMEMBO NAMEMBNOSTI ENOTE V STANOVANJE. ZA VEČ INFORMACIJ NAS KONTAKTIRAJTE.
Na prodaj je poslovni apartma v novem projektu NICA, ki nastaja v samem središču Nove Gorice. Objekt bo dokončan in vseljiv V SREDINI LETA 2028, enota pa se nahaja v 1. nadstropju sodobne večnamenske stavbe.
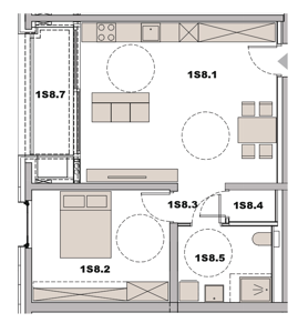
Prostor obsega skupno 67,67 m² površine in je zasnovan tako, da omogoča različne možnosti uporabe – od poslovne dejavnosti do kombiniranih rešitev. Sestavljen je iz večjega osrednjega prostora, dodatnega prostora, sanitarij in hodnika. Dodatno udobje nudi zunanja površina – loža (6,19 m²), ki zagotavlja prijetno naravno svetlobo in možnost sprostitve.
Enoti pripadata dve shrambi ter parkirno mesto v garaži, kar povečuje funkcionalnost in priročnost uporabe.
Projekt NICA se nahaja v neposredni bližini vseh pomembnih mestnih točk – trgovin, šol, zdravstvenega doma, železniške postaje in mestnega jedra. Lokacija omogoča odlično poslovno dostopnost in je idealna za dejavnosti, ki zahtevajo povezavo z mestnim središčem ter hiter dostop do infrastrukture.
Nova Gorica se ponaša z izjemno lego ob meji z Italijo, kakovostno infrastrukturo in številnimi zelenimi površinami, ki ustvarjajo prijetno delovno in bivalno okolje. Mesto ponuja bogato kulturno in družabno dogajanje, leta 2025 pa je postalo tudi evropska prestolnica kulture, kar še dodatno povečuje njegov razvojni potencial.
Zaradi svoje fleksibilne zasnove je ta enota odlična priložnost za vse, ki iščejo sodoben večnamenski prostor v središču Nove Gorice – primeren za poslovno dejavnost, investicijo ali kasnejšo spremembo namembnosti.
Več informacij in tlorise najdete na www.nicagorica.si
*Vizualizacije so informativne narave.