
univ. dipl. prav., nepremičninski posrednik
Don`t miss out on the best real estate offers. Sign up for Moja Stoja.
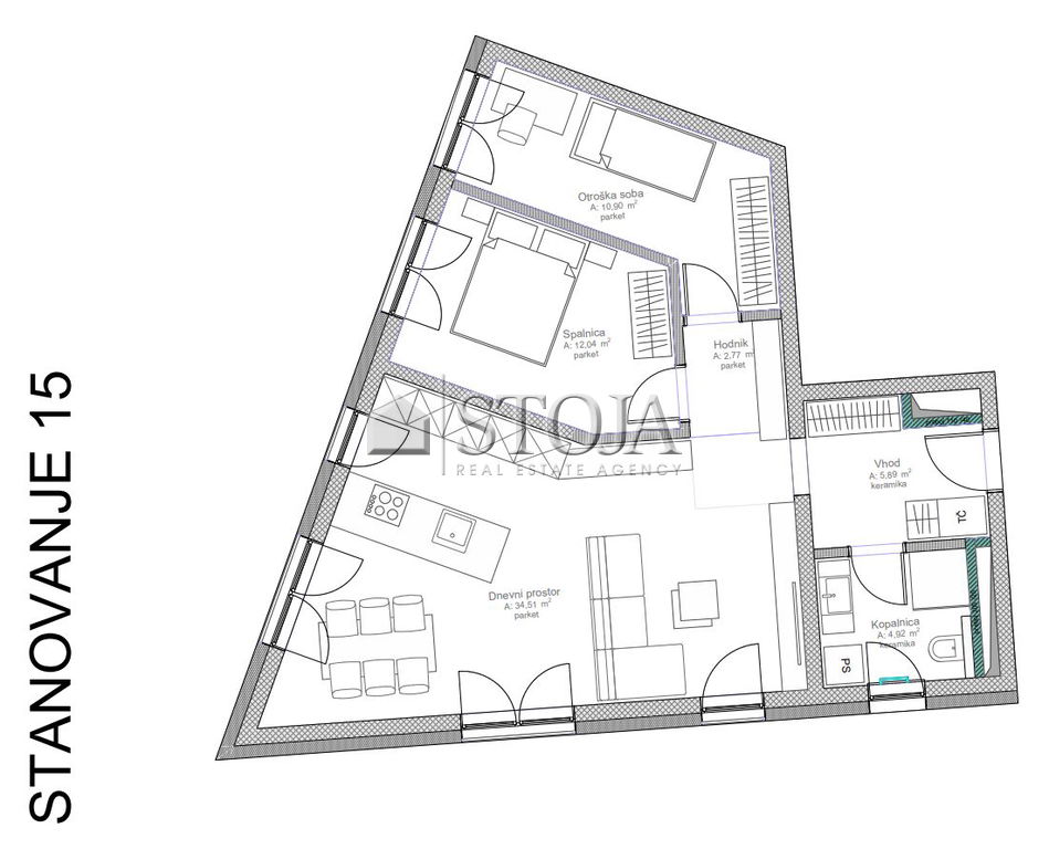
Read moreFor rent a modernly designed apartment in a new low-energy building with an elevator and an associated outdoor parking space (net 75.1 m2).
The building is located in an exceptional location near the city center and entire infrastructure.
The apartment features its own heat pump and underfloor heating, spot ventilation with recuperation, a Mitsubishi air conditioning unit, panoramic 3-layer windows with electrically controlled blinds, Italian ceramics, wide-strip oiled oak parquet, anti-burglary entrance doors, and high ceilings (2.75 m).
The layout includes an entrance hall with wardrobe, bathroom, a large living area with kitchen, dining room and multiple French balconies, a youth room and a master bedroom.
The apartment also includes a private storage room (3 m2). It is also possible to rent an additional parking space in the underground garage for €70/month or an additional outdoor parking space for €50/month.
The apartment is rented unfurnished, except for the kitchen with appliances and bathroom equipment; the security deposit is double the rent. Looking for a tidy and long-term tenant, with rental possible for a minimum of 25 months.
Suitable for long-term rental, available immediately, welcome to visit!
Lessor's condition for concluding a deal:
- Minimum rental period 25 months,
- The security deposit amounts to 2 months rent,
- the lessee pays a part of additional services of drafting the rental contract, which includes the following actions by the broker: handover of the real estate, participation in the transfer of subscriptions, the preparation and storage of pictorial material in line with the price list in the agency’s general terms - under the advertised rent and predicted duration of lease for 25 months, the lessee pays a one-off amount of 1.250 EUR plus 22 % VAT, which amounts to 1.525 EUR.
VAT is charged only on additional services, not on rent!