
univ. dipl. prav., nepremičninski posrednik
Don`t miss out on the best real estate offers. Sign up for Moja Stoja.
Read moreFor rent a spacious mixed-use residential and commercial house in an exclusive location and in close proximity to all infrastructure (school, kindergarten, shops, railway station, walking path along Kamniška Bistrica river, etc.).
The house includes a basement area with a large garage, two larger storage rooms, a utility room, drying room, sanitary facilities, and three offices that can also be used as bedrooms.
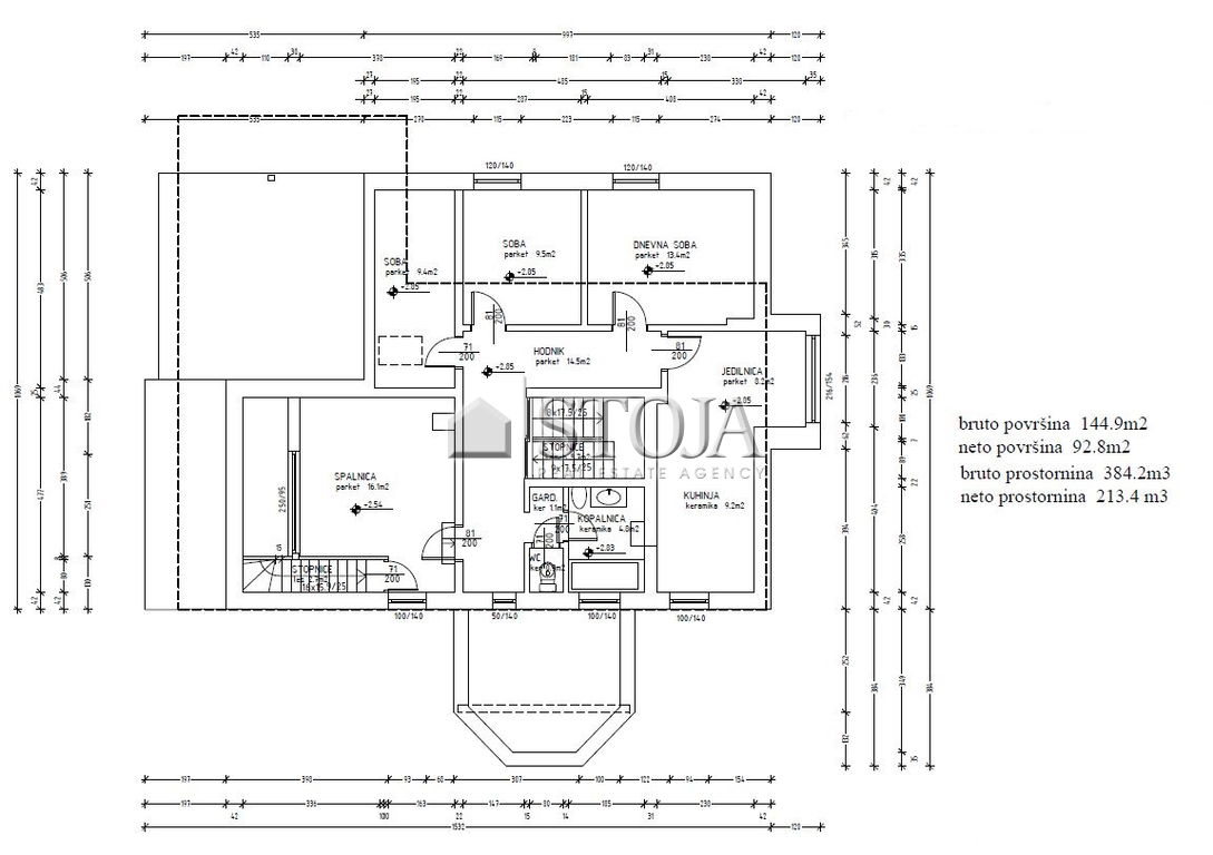
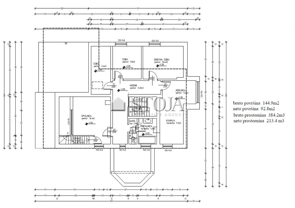
On the high ground floor, there is a larger 3-room apartment with a bathroom and exit to a terrace with a garden.
In the attic floor, there is a larger 4-room apartment with exit to a terrace offering views of the hills.
Outside there is a double driveway with parking space for about 5 cars and a landscaped garden with a canopy.
Heating is provided by a heat pump, the house has built-in local heat recuperation ventilation and a new insulated facade.
The house can also function as a two-apartment house with a commercial part and separate entrances or even as a three-apartment house with separate entrances.
The security deposit is double the rent, and the contract is concluded by notarial deed.
Available by agreement, you are welcome to visit!
You can watch the property video at the link: https://youtu.be/0MBeoZgNfkk
The lessee accepts part of the additional services in payment, i.e. drawing up the rental agreement, which includes the following actions of the intermediary: execution of the handover of the real estate and drawing up of minutes, participation in the transcription of subscriptions, preparation and storage of image material, in accordance with the price list specified in the general terms and conditions of the real estate company, so that the tenant pays at the advertised rent and duration of the lease for 25 months one-off amount for additional services EUR 2.500 plus 22% VAT, total EUR 3.050.
VAT is charged only on additional services, not on rent!